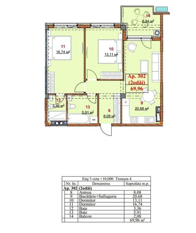
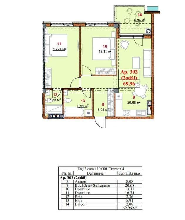
Solomon Construct Imobil, Botanica, str. Grenoble 134/4, 2 camere.
32 Vizualizari
112,500
1500/mp2
















Loading...
















Descriere:
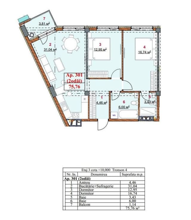
In vânzare apartament contruit de compania Solomon Construct Imobil, amplasat în sectorul Botanica, str. Grenoble 134/4. Locuința se desfășoară pe o suprafață de 75 m2, localizat la etajul 5 din 12, fiind compartimentat în: 2 camere, bucătărie, ,1 blocuri sanitare și antreu.
5/12
2 camere
Bloc nou
undefined
75mp2
Încălzire centralizată
1 baie
Solomon Construct Imobil